東金市台方 千葉県東金市台方|2,188万円の新築一戸建て|株式会社JTM商事
| 価格 | 2,188万円 ![]() |
||||
|---|---|---|---|---|---|
| 所在地 | 千葉県東金市台方
この地域周辺の物件を見る |
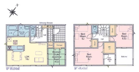
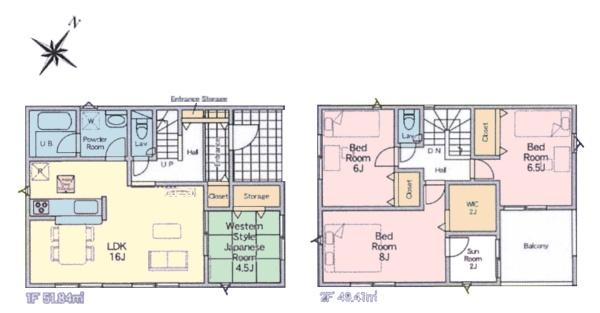
土地面積 | 181.82m² (55坪) | 建物面積 | 98.82m2 |
| 築年月 | 2025年11月築 | 間取り | 4LDK (LDK16/和室5/洋室8/洋室6/洋室6) | ||
| 交通 |
JR東金線 福俵 徒歩19分
JR東金線 東金 徒歩26分 JR外房線 大網 徒歩71分 |
||||
| 特徴 |
|
|---|---|
| セールスコメント | - |
| 採光面 | 東南 | 構造/階数 | 木造/地上2階建 |
|---|---|---|---|
| 建ぺい率 | 60(%) | 容積率 | 200(%) |
| 駐車場 | 有 | 現況/引渡し | 新築/相談 |
| 土地権利 | 所有権 | 私道負担面積 | - |
| 接道状況 | 接道: 東 公道 道路幅: 7.39m | 用途地域 |
準住居地域
|
| セットバック | - | 法令上の制限 | 日影制限有 |
| 地目 | 宅地 | 地勢 | |
| 建築確認番号 | 第25UDl1W建06570号 | 都市計画 | - |
| 取引態様 | 仲介 | ||
| 情報更新日 | 2026年02月04日 | 次回更新日 | 2026年02月18日 |
| 小学校区 | 東金市立城西小学校 (千葉県東金市) この学区の他の物件を見る |
中学校区 | 西中学校 (千葉県東金市) この学区の他の物件を見る |
|---|
| 価格 | 万円 | ||
|---|---|---|---|
| 年利率 | % |
||
| ボーナス払い | 返済年数 | ||
| 頭金 | 直接入力する | 万円 | |

毎月のご返済額 |
ボーナス(×年2回) |
物件価格2,188万円 |
Copyright (C) センチュリー21JTM商事 All rights Reserved.
・2025年11月末完成予定♪
・天候に左右されないサンルーム♪
・TVモニター付きインターホンや防犯カメラがあり安心な暮らし◎
・小学校徒歩10分♪
・閑静な住宅街♪