松戸市常盤平西窪町 千葉県松戸市常盤平西窪町|5,499万円の新築一戸建て|株式会社JTM商事
| 価格 | 5,499万円値下がり ![]() |
||||
|---|---|---|---|---|---|
| 所在地 | 千葉県松戸市常盤平西窪町
この地域周辺の物件を見る |
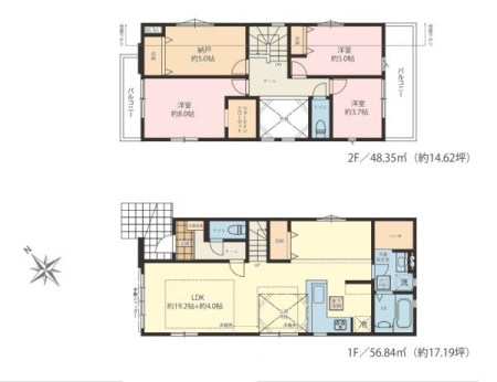
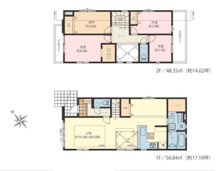
土地面積 | 123.93m² (37.48坪) | 建物面積 | 105.19m2 |
| 築年月 | 2026年1月築 | 間取り | 3SLDK (LDK23.2/洋室3.7/洋室5/洋室8/S5) | ||
| 交通 |
JR武蔵野線 新八柱 徒歩10分
京成松戸線 八柱 徒歩11分 京成松戸線 常盤平 徒歩15分 |
||||
| 特徴 |
|
|---|---|
| セールスコメント | - |
| 採光面 | 南西 | 構造/階数 | 木造/地上2階建 |
|---|---|---|---|
| 建ぺい率 | 50(%) | 容積率 | 100(%) |
| 駐車場 | 有 | 現況/引渡し | 新築/即時 |
| 土地権利 | 所有権 | 私道負担面積 | - |
| 接道状況 | 接道: 北西 公道 道路幅: 6m | 用途地域 |
第一種低層住居専用地域
|
| セットバック | - | 法令上の制限 | 景観法 |
| 地目 | 宅地 | 地勢 | |
| 建築確認番号 | 都市計画 | 市街化区域 | |
| 取引態様 | 仲介 | ||
| 情報更新日 | 2026年05月09日 | 次回更新日 | 2026年05月23日 |
| 小学校区 | 松戸市立常盤平第三小学校 (千葉県松戸市) この学区の他の物件を見る |
中学校区 | 常盤平中学校 (千葉県松戸市) この学区の他の物件を見る |
|---|
| 価格 | 万円 | ||
|---|---|---|---|
| 年利率 | % |
||
| ボーナス払い | 返済年数 | ||
| 頭金 | 直接入力する | 万円 | |

毎月のご返済額 |
ボーナス(×年2回) |
物件価格5,499万円 |
Copyright (C) センチュリー21JTM商事 All rights Reserved.
・武蔵野線『新八柱』駅まで徒歩9分!
・新京成線『八柱駅まで徒歩10分♪
・常盤平第三小学校まで徒歩4分♪
・買い物施設も徒歩10分圏内♪
・床暖房完備で冬場も快適♪