木更津市清川2丁目 千葉県木更津市清川2丁目|680万円の中古一戸建て|株式会社JTM商事
| 価格 | 680万円 ![]() |
||||
|---|---|---|---|---|---|
| 所在地 | 千葉県木更津市清川2丁目
この地域周辺の物件を見る |
土地面積 | 108.31m² (32.76坪) | 建物面積 | 61.27m2 |
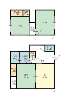
| 築年月 | 1979年7月築 | 間取り | 3DK (-) | ||
| 交通 |
JR久留里線 上総清川 徒歩5分
JR久留里線 祇園 徒歩23分 JR内房線 木更津 徒歩54分 |
||||
| 特徴 |
|
|---|---|
| セールスコメント | - |
| 採光面 | - | 構造/階数 | 木造/地上2階建 |
|---|---|---|---|
| 建ぺい率 | 60(%) | 容積率 | 200(%) |
| 駐車場 | 有 | 現況/引渡し | 空家/相談 |
| 土地権利 | 所有権 | 私道負担面積 | - |
| 接道状況 | 接道: 南 公道 道路幅: 10m | 用途地域 |
第一種低層住居専用地域
|
| セットバック | - | 法令上の制限 | 景観法・第一種高度地区 |
| 地目 | 宅地 | 地勢 | |
| 建築確認番号 | 都市計画 | - | |
| 取引態様 | 一般媒介 | ||
| 情報更新日 | 2026年04月25日 | 次回更新日 | 2026年05月09日 |
| 小学校区 | 木更津市立祇園小学校 (千葉県木更津市) この学区の他の物件を見る |
中学校区 | 清川中学校 (千葉県木更津市) この学区の他の物件を見る |
|---|
| 価格 | 万円 | ||
|---|---|---|---|
| 年利率 | % |
||
| ボーナス払い | 返済年数 | ||
| 頭金 | 直接入力する | 万円 | |

毎月のご返済額 |
ボーナス(×年2回) |
物件価格680万円 |
Copyright (C) センチュリー21JTM商事 All rights Reserved.
・2003年に水回り、フローリング、外装塗装リフォーム済♪
・JR久留里線『上総清川』駅まで徒歩約5分♪
・買い物施設や生活施設が充実!暮らしに便利な立地♪